Nuova villetta di testa dal design moderno

Cantello (VA)

Vendita

455.000 €


2 Bagni

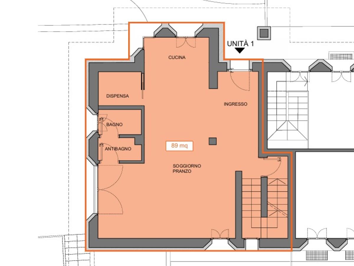
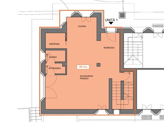
220 m²

4 Locali

Nel cuore di Cantello, in una posizione riservata e tranquilla, prende vita un progetto esclusivo di riqualificazione: un’ampia dimora con dependance verrà completamente trasformata in quattro nuove unità abitative indipendenti, progettate per offrire comfort, privacy e qualità costruttiva ai massimi livelli.

Proponiamo l'ultima villetta di testa, caratterizzata da ampi spazi distribuiti su 3 livelli, e molto luminosa grazie alle ampie vetrate, oltre a un grazioso giardino di circa 200 mq.

L’abitazione sarà realizzata con impianti Daikin Multi+ di ultima generazione: climatizzazione, riscaldamento e acqua calda in un unico sistema a pompa di calore, con split ad alta efficienza e gestione tramite app, oltre a pannelli fotovoltaici, cappotto termico e classe energetica A4 garantita. Consumi ridotti e massimo comfort tutto l’anno.
Completamente termoautonoma e indipendente negli accessi e negli spazi esterni.

PERSONALIZZABILE SU MISURA
Gli interni possono essere totalmente personalizzati, scegliendo tra finiture moderne di alta gamma per creare ambienti eleganti, luminosi e funzionali, pensati attorno al tuo stile di vita.

POSIZIONE STRATEGICA
Pur trovandosi nel cuore di Cantello, la villa gode di un contesto riservato e silenzioso, a pochi passi da negozi, scuole e servizi principali, ma immersa in una tranquillità inaspettata.

Consegna prevista: Autunno 2026
Contattaci per visionare progetti, planimetrie e rendering

Richiedi informazioni
Spese mensili (in €) 0.0 Anno di costruzione 2025
Anno di ristrutturazione 2025 Superficie commerciale (in m²) 220
Superficie esterna (in m²) 190 Piano terra
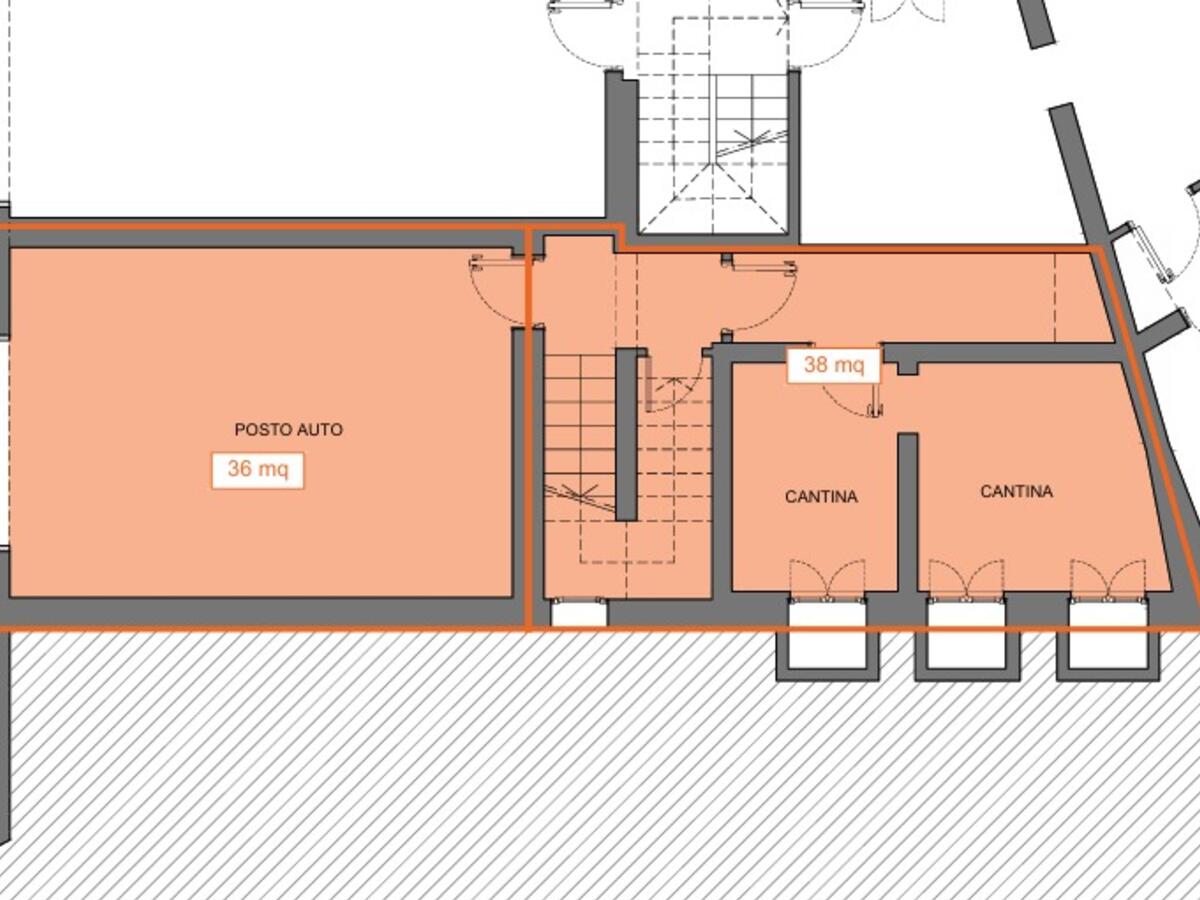
Classe energetica A4 Garage doppio
Posto auto esterno si Giardino Giardino privato
Locali 4 Bagni 2
Terrazzo si Superficie terrazzo (in m²) 8
Balconi 2 Riscaldamento autonomo
Cantina si Ascensore no

Richiedi informazioni

Desideri ulteriori informazioni o chiarimenti su questo annuncio?

Invia Messaggio